Top.Mail.Ru

улица Академика Понтрягина, д. 25

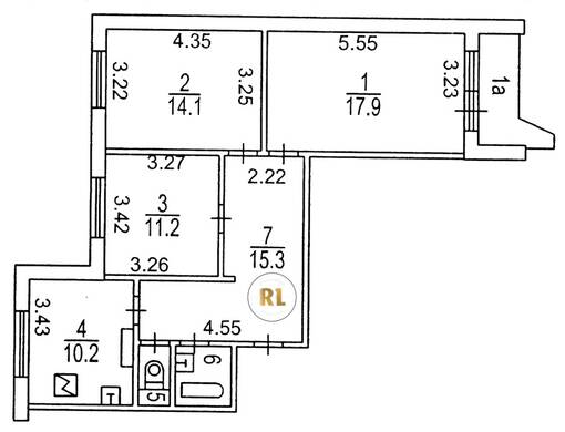
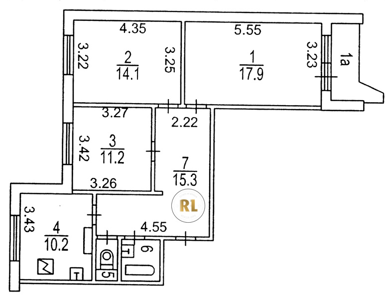
База каталог, Кол-во подъездов: 2, Имеется, П-44, Москва, Южное Бутово, Площадь парковки: 237, Пассажирский лифт: 2, От метро: 1220, Юго-Западный, да, Наименьшее кол-во этажей: 10, Наибольшее кол-во этажей: 12, Бунинская аллея, Кол-во помещений: 82, Кол-во нежилых помещений: 1, Год ввода в эксплуатацию: 2006, 3-комн, Кол-во жилых помещений: 81, Не присвоен, дом 25, нет, да, да, да, да, нет, Имеется, Грузовых лифтов: 2, Год постройки: 2006, улица Академика Понтрягина, 37.501609, 55.532126
Свяжитесь со мной на счет цены
10 дн.
T55S532126L37S501609T

На карте


Условия сделки

Источник


Старт продаж

Возможно заинтересует