Top.Mail.Ru

Южнобутовская ул., д. 117

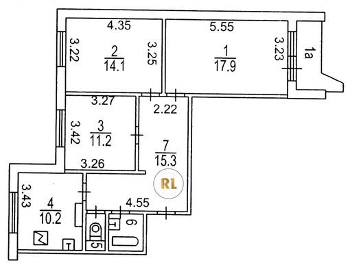
База каталог, Кол-во подъездов: 5, Имеется, П-44, Москва, Южное Бутово, Площадь парковки: 483, Пассажирский лифт: 5, От метро: 810, Юго-Западный, да, Наименьшее кол-во этажей: 12, Наибольшее кол-во этажей: 12, Бунинская аллея, Кол-во помещений: 233, Кол-во нежилых помещений: 5, Год ввода в эксплуатацию: 1996, 3-комн, Кол-во жилых помещений: 228, Не присвоен, дом 117, нет, да, да, да, да, да, Имеется, Грузовых лифтов: 5, Год постройки: 1996, Южнобутовская улица, 37.519485, 55.532197
Свяжитесь со мной на счет цены
10 дн.
T55S532197L37S519485T

На карте


Условия сделки

Источник


Старт продаж

Возможно заинтересует