Top.Mail.Ru

улица Академика Понтрягина, д. 19

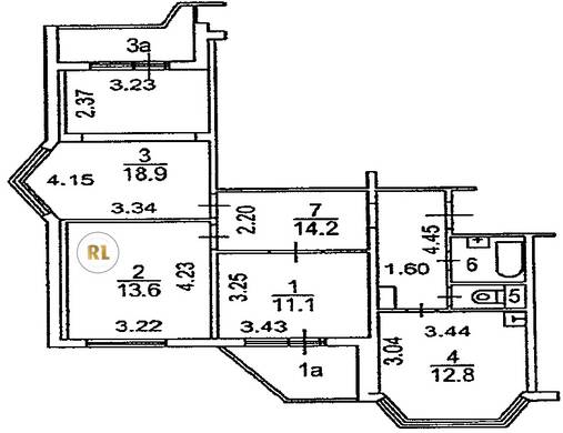
База каталог, Кол-во подъездов: 3, Отсутствует, П-44T, Москва, Южное Бутово, Площадь парковки: 355, Пассажирский лифт: 3, От метро: 1150, Юго-Западный, да, Наименьшее кол-во этажей: 14, Наибольшее кол-во этажей: 14, Бунинская аллея, Кол-во помещений: 162, Кол-во нежилых помещений: 4, Год ввода в эксплуатацию: 2006, 3-комн, Кол-во жилых помещений: 158, Не присвоен, дом 19, нет, да, да, да, да, нет, Имеется, Грузовых лифтов: 3, Год постройки: 2006, улица Академика Понтрягина, 37.500728, 55.533119
Свяжитесь со мной на счет цены
10 дн.
T55S533119L37S500728T

На карте


Условия сделки

Источник


Старт продаж

Возможно заинтересует