Top.Mail.Ru

Южнобутовская ул., д. 85

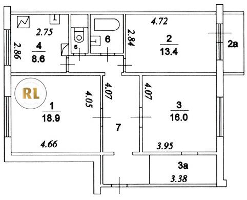
База каталог, Кол-во подъездов: 6, П-46, Москва, Южное Бутово, Площадь парковки: 837, Пассажирский лифт: 1, От метро: 930, Юго-Западный, да, Наименьшее кол-во этажей: 4, Наибольшее кол-во этажей: 9, Бунинская аллея, Кол-во помещений: 122, Кол-во нежилых помещений: 3, Год ввода в эксплуатацию: 1996, 3-комн, Кол-во жилых помещений: 119, Не присвоен, дом 85, нет, да, да, да, да, да, Грузовых лифтов: 5, Год постройки: 1996, Южнобутовская улица, 37.524192, 55.534163
Свяжитесь со мной на счет цены
10 дн.
T55S534163L37S524192T

На карте


Условия сделки

Источник


Старт продаж

Возможно заинтересует