Top.Mail.Ru

Южнобутовская ул., д. 86, к. 1

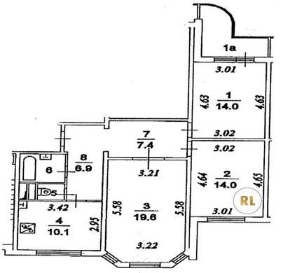
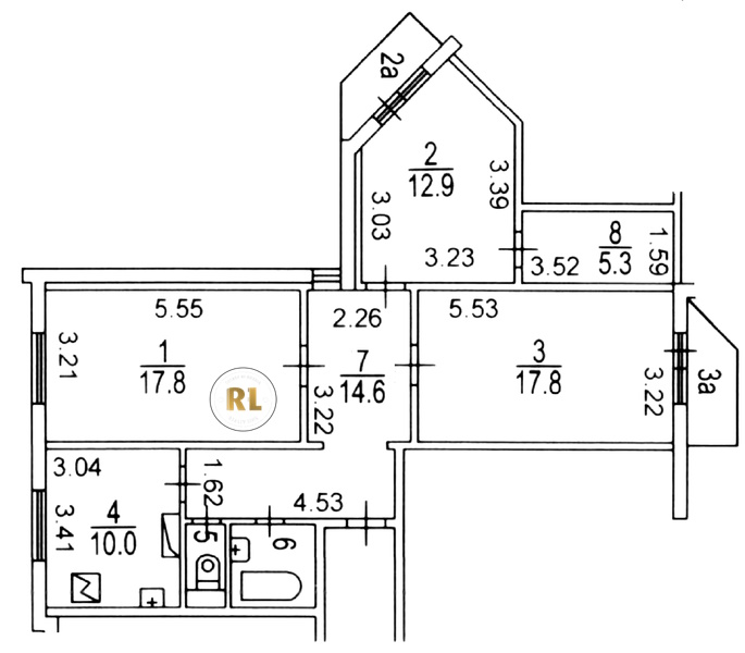
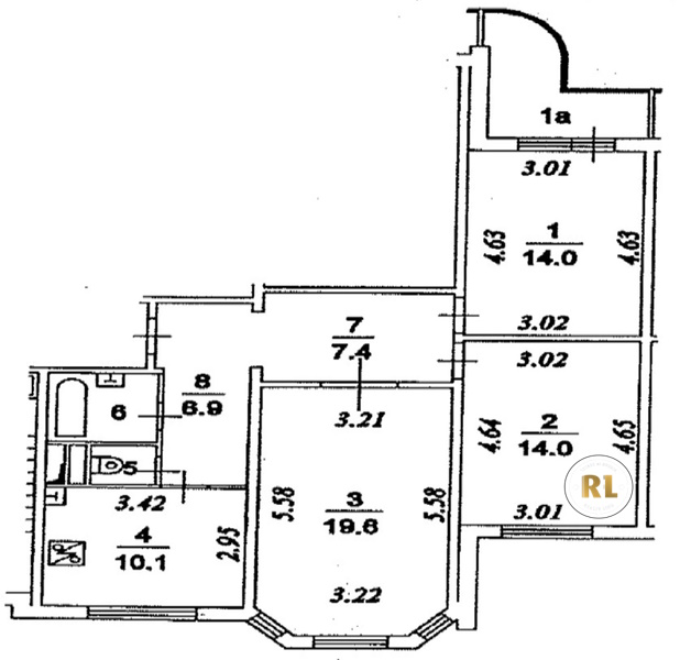
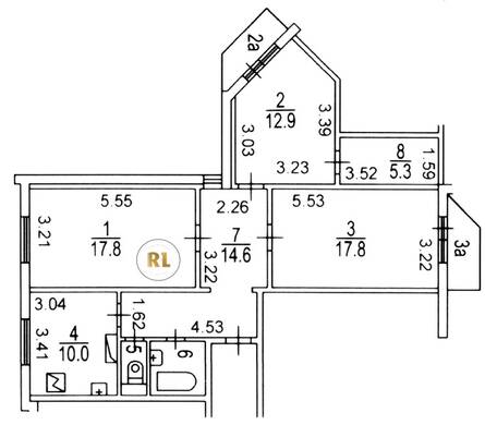
База каталог, Кол-во подъездов: 2, Отсутствует, П-3M, Москва, Южное Бутово, Площадь парковки: 115, Пассажирский лифт: 2, От метро: 500, Юго-Западный, да, Наименьшее кол-во этажей: 8, Наибольшее кол-во этажей: 8, Бунинская аллея, Кол-во помещений: 64, Кол-во нежилых помещений: 0, Год ввода в эксплуатацию: 2000, 3-комн, Кол-во жилых помещений: 64, Не присвоен, дом 86, корпус 1, да, да, да, да, да, да, Имеется, Грузовых лифтов: 2, Год постройки: 1999, Южнобутовская улица, 37.514176, 55.534169
Свяжитесь со мной на счет цены
10 дн.
T55S534169L37S514176T

На карте


Условия сделки

Источник


Старт продаж

Возможно заинтересует