Top.Mail.Ru

Южнобутовская ул., д. 72

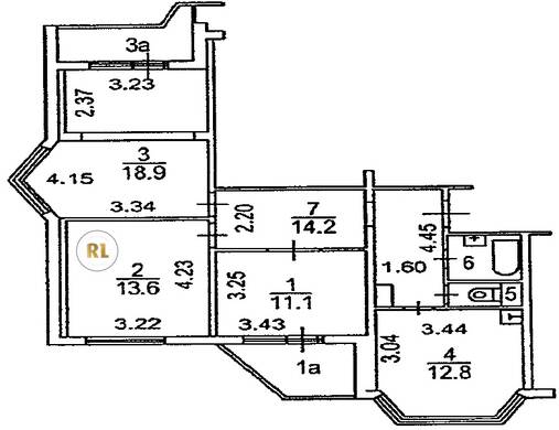
База каталог, Кол-во подъездов: 4, П-44T, Москва, Южное Бутово, Площадь парковки: 621, Пассажирский лифт: 4, От метро: 620, Юго-Западный, да, Наименьшее кол-во этажей: 10, Наибольшее кол-во этажей: 10, Бунинская аллея, Кол-во помещений: 158, Кол-во нежилых помещений: 3, Год ввода в эксплуатацию: 2000, 3-комн, Кол-во жилых помещений: 155, Не присвоен, дом 72, нет, да, да, да, да, да, Имеется, Грузовых лифтов: 4, Год постройки: 1999, Южнобутовская улица, 37.521093, 55.535213
Свяжитесь со мной на счет цены
10 дн.
T55S535213L37S521093T

На карте


Условия сделки

Источник


Старт продаж

Возможно заинтересует