Top.Mail.Ru

Южнобутовская ул., д. 53

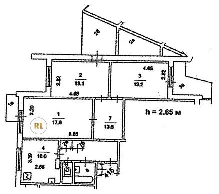
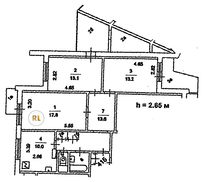
База каталог, Кол-во подъездов: 3, Имеется, П-3/16, Москва, Южное Бутово, Площадь парковки: 314, Пассажирский лифт: 3, От метро: 780, Юго-Западный, да, Наименьшее кол-во этажей: 10, Наибольшее кол-во этажей: 10, Улица Горчакова, Кол-во помещений: 119, Кол-во нежилых помещений: 1, Год ввода в эксплуатацию: 1996, 3-комн, Кол-во жилых помещений: 118, Не присвоен, дом 53, нет, да, да, да, да, да, Имеется, Грузовых лифтов: 3, Год постройки: 1996, Южнобутовская улица, 37.531657, 55.536176
Свяжитесь со мной на счет цены
10 дн.
T55S536176L37S531657T

На карте


Условия сделки

Источник


Старт продаж

Возможно заинтересует