Top.Mail.Ru

Южнобутовская ул., д. 56

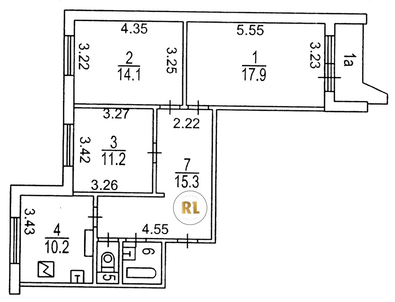
База каталог, Кол-во подъездов: 4, Имеется, П-44, Москва, Южное Бутово, Площадь парковки: 489, Пассажирский лифт: 4, От метро: 640, Юго-Западный, да, Наименьшее кол-во этажей: 10, Наибольшее кол-во этажей: 10, Улица Горчакова, Кол-во помещений: 160, Кол-во нежилых помещений: 2, Год ввода в эксплуатацию: 2000, 3-комн, Кол-во жилых помещений: 158, Не присвоен, дом 56, нет, да, да, да, да, да, Имеется, Грузовых лифтов: 4, Год постройки: 1999, Южнобутовская улица, 37.529322, 55.537149
Свяжитесь со мной на счет цены
10 дн.
T55S537149L37S529322T

На карте


Условия сделки

Источник


Старт продаж

Возможно заинтересует