Top.Mail.Ru

Южнобутовская ул., д. 33

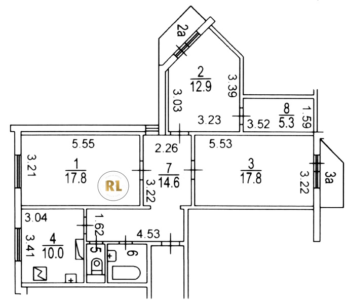
База каталог, Кол-во помещений: 98, П-3M, Москва, Южное Бутово, Площадь парковки: 211, Пассажирский лифт: 3, От метро: 920, Юго-Западный, да, Наименьшее кол-во этажей: 9, Наибольшее кол-во этажей: 9, Улица Горчакова, Кол-во подъездов: 3, Год ввода в эксплуатацию: 2000, Кол-во нежилых помещений: 2, 3-комн, Кол-во жилых помещений: 96, дом 33, нет, да, да, да, да, да, Грузовых лифтов: 3, Год постройки: 2000, Южнобутовская улица, 37.537739, 55.537342
Свяжитесь со мной на счет цены
10 дн.
T55S537342L37S537739T

На карте


Условия сделки

Источник


Старт продаж

Возможно заинтересует