Top.Mail.Ru

Южнобутовская ул., д. 29

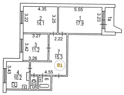
База каталог, Кол-во подъездов: 5, Отсутствует, П-44, Москва, Южное Бутово, Площадь парковки: 525, Пассажирский лифт: 5, От метро: 750, Юго-Западный, да, Наименьшее кол-во этажей: 10, Наибольшее кол-во этажей: 10, Улица Горчакова, Кол-во помещений: 190, Кол-во нежилых помещений: 2, Год ввода в эксплуатацию: 2000, 3-комн, Кол-во жилых помещений: 188, Не присвоен, дом 29, нет, да, да, да, да, да, Отсутствует, Грузовых лифтов: 5, Год постройки: 1999, Южнобутовская улица, 37.537218, 55.538473
Свяжитесь со мной на счет цены
10 дн.
T55S538473L37S537218T

На карте


Условия сделки

Источник


Старт продаж

Возможно заинтересует