Top.Mail.Ru

Южнобутовская ул., д. 29, к. 1

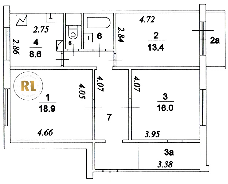
База каталог, Кол-во подъездов: 4, Имеется, П-46M, Москва, Южное Бутово, Площадь парковки: 522, Пассажирский лифт: 3, От метро: 770, Юго-Западный, да, Наименьшее кол-во этажей: 9, Наибольшее кол-во этажей: 12, Улица Горчакова, Кол-во помещений: 211, Кол-во нежилых помещений: 1, Год ввода в эксплуатацию: 2000, 3-комн, Кол-во жилых помещений: 210, Не присвоен, дом 29, корпус 1, нет, да, да, да, да, да, Имеется, Грузовых лифтов: 3, Год постройки: 2000, Южнобутовская улица, 37.538467, 55.538499
Свяжитесь со мной на счет цены
10 дн.
T55S538499L37S538467T

На карте


Условия сделки

Источник


Старт продаж

Возможно заинтересует