Top.Mail.Ru

Южнобутовская ул., д. 21

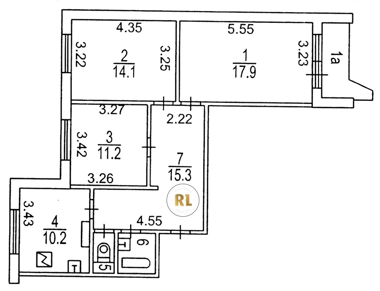
База каталог, Кол-во помещений: 117, П-44, Москва, Южное Бутово, Площадь парковки: 174, Пассажирский лифт: 3, От метро: 770, Юго-Западный, да, Наименьшее кол-во этажей: 10, Наибольшее кол-во этажей: 10, Улица Горчакова, Кол-во подъездов: 3, Год ввода в эксплуатацию: 2000, Кол-во нежилых помещений: 5, 3-комн, Кол-во жилых помещений: 112, дом 21, нет, да, да, да, да, да, Грузовых лифтов: 3, Год постройки: 1999, Южнобутовская улица, 37.541036, 55.539833
Свяжитесь со мной на счет цены
10 дн.
T55S539833L37S541036T

На карте


Условия сделки

Источник


Старт продаж

Возможно заинтересует