Top.Mail.Ru

Южнобутовская ул., д. 25

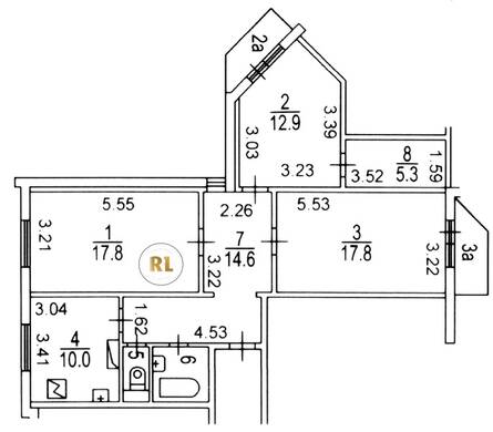
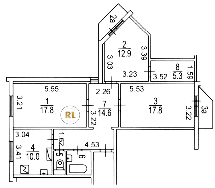
База каталог, Кол-во помещений: 111, П-3M, Москва, Южное Бутово, Площадь парковки: 239, Пассажирский лифт: 3, От метро: 600, Юго-Западный, да, Наименьшее кол-во этажей: 9, Наибольшее кол-во этажей: 12, Улица Горчакова, Кол-во подъездов: 3, Год ввода в эксплуатацию: 2000, Кол-во нежилых помещений: 3, 3-комн, Кол-во жилых помещений: 108, дом 25, нет, да, да, да, да, да, Грузовых лифтов: 3, Год постройки: 1999, Южнобутовская улица, 37.537685, 55.539895
Свяжитесь со мной на счет цены
10 дн.
T55S539895L37S537685T

На карте


Условия сделки

Источник


Старт продаж

Возможно заинтересует