Top.Mail.Ru

Изюмская ул., д. 61

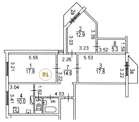
База каталог, Кол-во подъездов: 2, П-3M, Москва, Южное Бутово, Площадь парковки: 350, Пассажирский лифт: 2, От метро: 860, Юго-Западный, да, Наименьшее кол-во этажей: 12, Наибольшее кол-во этажей: 12, Улица Скобелевская, Кол-во помещений: 92, Кол-во нежилых помещений: 4, Год ввода в эксплуатацию: 2009, 3-комн, Кол-во жилых помещений: 88, Не присвоен, дом 61, нет, да, да, да, да, да, Имеется, Грузовых лифтов: 2, Год постройки: 2009, Изюмская улица, 37.561473, 55.542920
Свяжитесь со мной на счет цены
10 дн.
T55S542920L37S561473T

На карте


Условия сделки

Источник


Старт продаж

Возможно заинтересует