Top.Mail.Ru

Скобелевская ул., д. 42

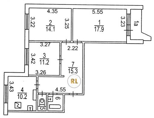
База каталог, Кол-во подъездов: 4, П-44, Москва, Южное Бутово, Площадь парковки: 0, Пассажирский лифт: 4, От метро: 720, Юго-Западный, нет, Наименьшее кол-во этажей: 3, Наибольшее кол-во этажей: 4, Улица Скобелевская, Кол-во помещений: 100, Кол-во нежилых помещений: 62, Год ввода в эксплуатацию: 1994, 3-комн, Кол-во жилых помещений: 38, Не присвоен, дом 42, нет, да, да, да, да, да, Грузовых лифтов: 0, Год постройки: 1994, Скобелевская улица, 37.556676, 55.542941
Свяжитесь со мной на счет цены
10 дн.
T55S542941L37S556676T

На карте


Условия сделки

Источник


Старт продаж

Возможно заинтересует