Top.Mail.Ru

Скобелевская ул., д. 36

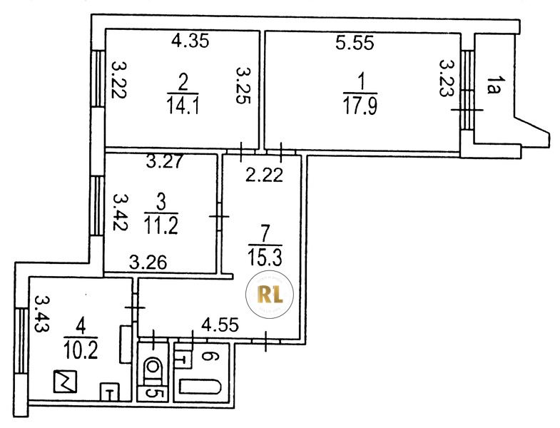
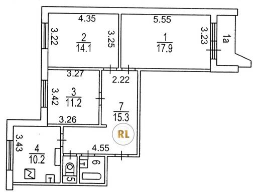
База каталог, Кол-во подъездов: 3, П-44, Москва, Южное Бутово, Пассажирский лифт: 3, От метро: 730, Юго-Западный, да, Наименьшее кол-во этажей: 10, Наибольшее кол-во этажей: 10, Улица Скобелевская, Кол-во помещений: 244, Кол-во нежилых помещений: 125, Год ввода в эксплуатацию: 1994, 3-комн, Кол-во жилых помещений: 119, Не присвоен, дом 36, нет, да, да, да, да, да, Грузовых лифтов: 3, Год постройки: 1994, Скобелевская улица, 37.554511, 55.543368
Свяжитесь со мной на счет цены
10 дн.
T55S543368L37S554511T

На карте


Условия сделки

Источник


Старт продаж

Возможно заинтересует