Top.Mail.Ru

Веневская ул., д. 21

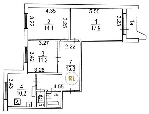
База каталог, Кол-во подъездов: 2, Имеется, П-44, Москва, Южное Бутово, Площадь парковки: 605, Пассажирский лифт: 2, От метро: 600, Юго-Западный, да, Наименьшее кол-во этажей: 10, Наибольшее кол-во этажей: 10, Улица Скобелевская, Кол-во помещений: 80, Кол-во нежилых помещений: 1, Год ввода в эксплуатацию: 1994, 3-комн, Кол-во жилых помещений: 79, Не присвоен, дом 21, нет, да, да, да, да, да, Имеется, Грузовых лифтов: 2, Год постройки: 1994, Веневская улица, 37.551663, 55.543868
Свяжитесь со мной на счет цены
10 дн.
T55S543868L37S551663T

На карте


Условия сделки

Источник


Старт продаж

Возможно заинтересует