Top.Mail.Ru

Изюмская ул., д. 57

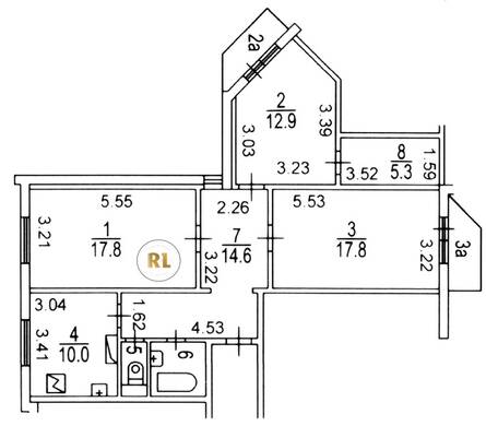
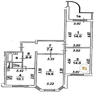
База каталог, Кол-во подъездов: 2, Отсутствует, П-3M, Москва, Южное Бутово, Площадь парковки: 155, Пассажирский лифт: 2, От метро: 850, Юго-Западный, да, Наименьшее кол-во этажей: 12, Наибольшее кол-во этажей: 12, Улица Скобелевская, Кол-во помещений: 90, Кол-во нежилых помещений: 2, Год ввода в эксплуатацию: 2009, 3-комн, Кол-во жилых помещений: 88, Не присвоен, дом 57, нет, да, да, да, да, да, Имеется, Грузовых лифтов: 2, Год постройки: 2009, Изюмская улица, 37.562335, 55.544061
Свяжитесь со мной на счет цены
10 дн.
T55S544061L37S562335T

На карте


Условия сделки

Источник


Старт продаж

Возможно заинтересует