Top.Mail.Ru

Скобелевская ул., д. 32

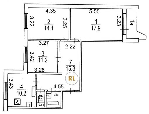
База каталог, Кол-во подъездов: 5, П-44, Москва, Южное Бутово, Пассажирский лифт: 5, От метро: 460, Юго-Западный, да, Наименьшее кол-во этажей: 10, Наибольшее кол-во этажей: 10, Улица Скобелевская, Кол-во помещений: 280, Кол-во нежилых помещений: 3, Год ввода в эксплуатацию: 1994, 3-комн, Кол-во жилых помещений: 277, дом 32, да, да, да, да, да, да, Грузовых лифтов: 5, Год постройки: 1994, Скобелевская улица, 37.556289, 55.544840
Свяжитесь со мной на счет цены
10 дн.
T55S544840L37S556289T

На карте


Условия сделки

Источник


Старт продаж

Возможно заинтересует