Top.Mail.Ru

Скобелевская ул., д. 26

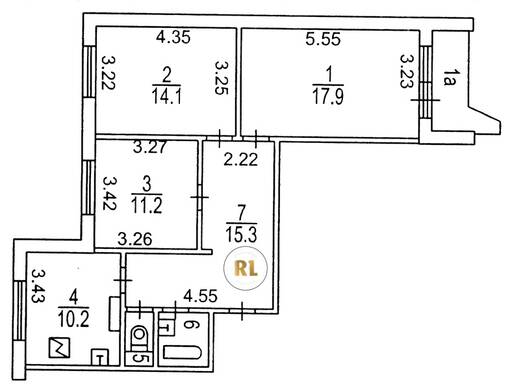
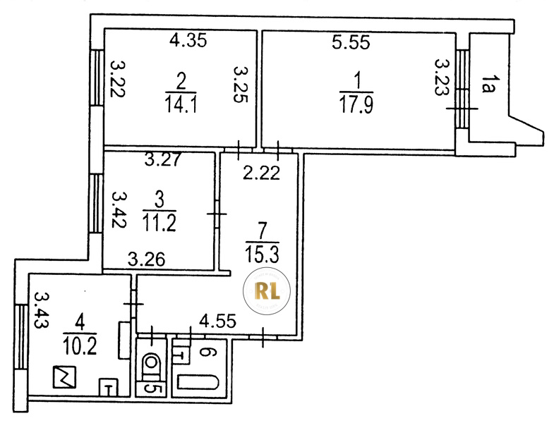
База каталог, Кол-во помещений: 389, П-44, Москва, Южное Бутово, Площадь парковки: 0, Пассажирский лифт: 3, От метро: 370, Юго-Западный, нет, Наименьшее кол-во этажей: 14, Наибольшее кол-во этажей: 14, Улица Скобелевская, Кол-во подъездов: 3, Год ввода в эксплуатацию: 1994, Кол-во нежилых помещений: 222, 3-комн, Кол-во жилых помещений: 167, дом 26, да, да, да, да, да, да, Грузовых лифтов: 3, Год постройки: 1994, Скобелевская улица, 37.555130, 55.545217
Свяжитесь со мной на счет цены
10 дн.
T55S545217L37S555130T

На карте


Условия сделки

Источник


Старт продаж

Возможно заинтересует