Top.Mail.Ru

Бартеневская ул., д. 57

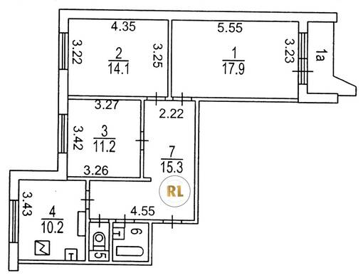
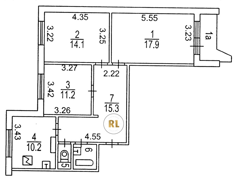
База каталог, Кол-во подъездов: 5, Имеется, П-44, Москва, Южное Бутово, Площадь парковки: 1077, Пассажирский лифт: 5, От метро: 1050, Юго-Западный, да, Наименьшее кол-во этажей: 10, Наибольшее кол-во этажей: 12, Бунинская аллея, Кол-во помещений: 221, Кол-во нежилых помещений: 0, Год ввода в эксплуатацию: 2000, 3-комн, Кол-во жилых помещений: 221, Не присвоен, дом 57, нет, да, да, да, да, да, Имеется, Грузовых лифтов: 5, Год постройки: 2000, Бартеневская улица, 37.516997, 55.545783
Свяжитесь со мной на счет цены
10 дн.
T55S545783L37S516997T

На карте


Условия сделки

Источник


Старт продаж

Возможно заинтересует