Top.Mail.Ru

Бартеневская ул., д. 49, к. 3

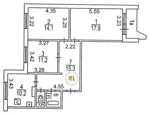
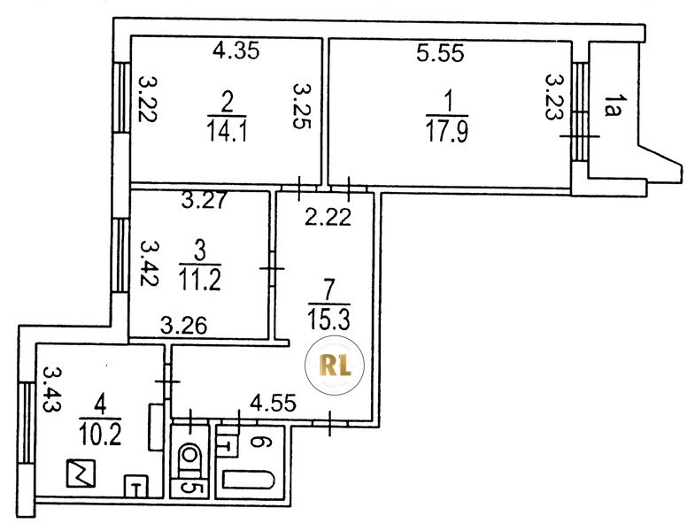
База каталог, Кол-во подъездов: 2, Отсутствует, П-44, Москва, Южное Бутово, Площадь парковки: 200, Пассажирский лифт: 2, От метро: 960, Юго-Западный, да, Наименьшее кол-во этажей: 12, Наибольшее кол-во этажей: 12, Бунинская аллея, Кол-во помещений: 96, Кол-во нежилых помещений: 1, Год ввода в эксплуатацию: 2000, 3-комн, Кол-во жилых помещений: 95, Не присвоен, дом 49, корпус 3, нет, да, да, да, да, да, Отсутствует, Грузовых лифтов: 2, Год постройки: 2000, Бартеневская улица, 37.519063, 55.545788
Свяжитесь со мной на счет цены
10 дн.
T55S545788L37S519063T

На карте


Условия сделки

Источник


Старт продаж

Возможно заинтересует