Top.Mail.Ru

Скобелевская ул., д. 20

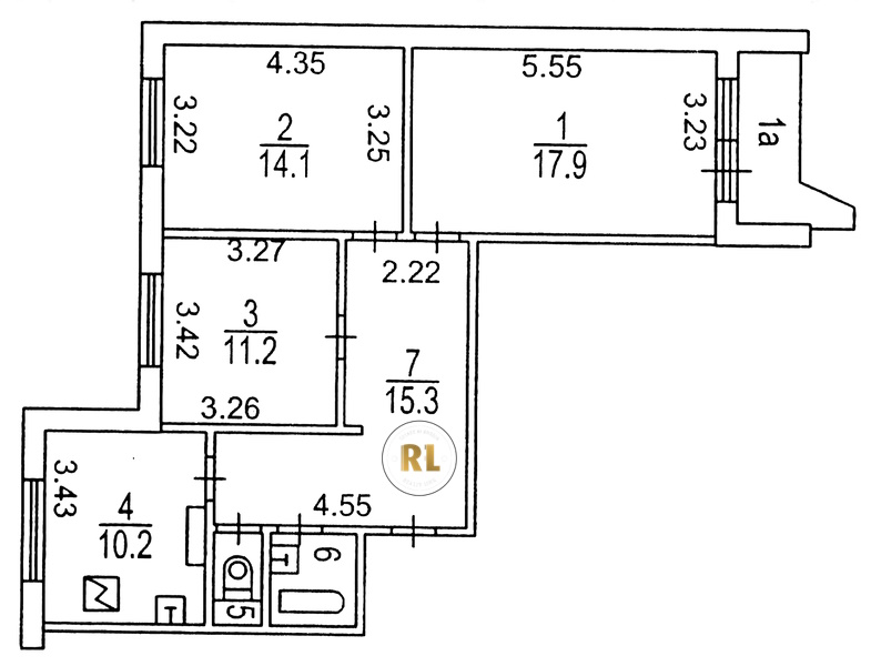
База каталог, Кол-во подъездов: 4, П-44, Москва, Южное Бутово, Площадь парковки: 0, Пассажирский лифт: 4, От метро: 298, Юго-Западный, нет, Наименьшее кол-во этажей: 17, Наибольшее кол-во этажей: 17, Улица Скобелевская, Кол-во помещений: 545, Кол-во нежилых помещений: 282, Год ввода в эксплуатацию: 1994, 3-комн, Кол-во жилых помещений: 263, Не присвоен, дом 20, да, да, да, да, да, да, Грузовых лифтов: 4, Год постройки: 1994, Скобелевская улица, 37.555445, 55.546053
Свяжитесь со мной на счет цены
10 дн.
T55S546053L37S555445T

На карте


Условия сделки

Источник


Старт продаж

Возможно заинтересует