Top.Mail.Ru

Бартеневская ул., д. 49

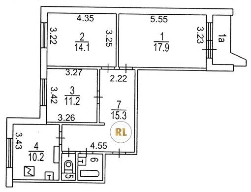
База каталог, Кол-во подъездов: 5, Отсутствует, П-44, Москва, Южное Бутово, Площадь парковки: 294, Пассажирский лифт: 5, От метро: 1080, Юго-Западный, да, Наименьшее кол-во этажей: 14, Наибольшее кол-во этажей: 14, Бунинская аллея, Кол-во помещений: 278, Кол-во нежилых помещений: 1, Год ввода в эксплуатацию: 2000, 3-комн, Кол-во жилых помещений: 277, Не присвоен, дом 49, нет, да, да, да, да, да, Отсутствует, Грузовых лифтов: 5, Год постройки: 2000, Бартеневская улица, 37.519557, 55.546557
Свяжитесь со мной на счет цены
10 дн.
T55S546557L37S519557T

На карте


Условия сделки

Источник


Старт продаж

Возможно заинтересует