Top.Mail.Ru

Веневская ул., д. 7

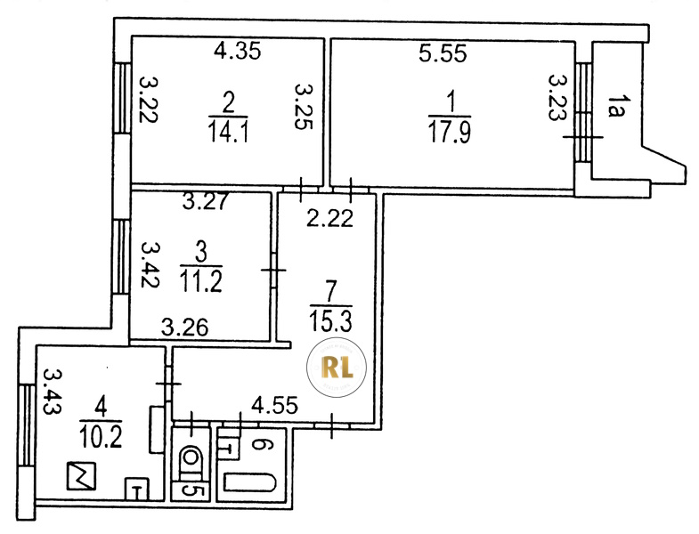
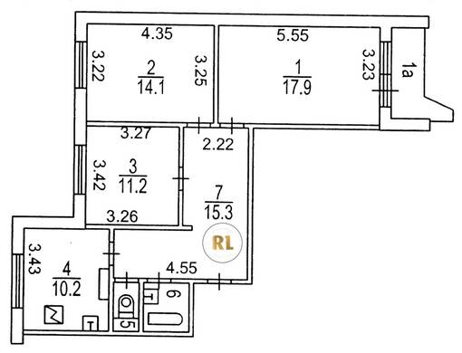
База каталог, Кол-во подъездов: 8, П-44, Москва, Южное Бутово, Пассажирский лифт: 8, От метро: 284, Юго-Западный, да, Наименьшее кол-во этажей: 17, Наибольшее кол-во этажей: 17, Бульвар Адмирала Ушакова, Кол-во помещений: 508, Кол-во нежилых помещений: 8, Год ввода в эксплуатацию: 1994, 3-комн, Кол-во жилых помещений: 500, Не присвоен, дом 7, да, да, да, да, да, да, Грузовых лифтов: 8, Год постройки: 1994, Веневская улица, 37.545968, 55.547056
Свяжитесь со мной на счет цены
10 дн.
T55S547056L37S545968T

На карте


Условия сделки

Источник


Старт продаж

Возможно заинтересует