Top.Mail.Ru

аллея Витте, д. 8

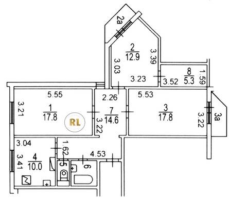
База каталог, Кол-во подъездов: 3, Отсутствует, П-3M, Москва, Южное Бутово, Площадь парковки: 353, Пассажирский лифт: 3, От метро: 350, Юго-Западный, да, Наименьшее кол-во этажей: 17, Наибольшее кол-во этажей: 17, Бульвар Адмирала Ушакова, Кол-во помещений: 204, Кол-во нежилых помещений: 0, Год ввода в эксплуатацию: 2002, 3-комн, Кол-во жилых помещений: 204, Не присвоен, дом 8, да, да, да, да, да, да, Отсутствует, Грузовых лифтов: 3, Год постройки: 2002, аллея Витте, 37.540946, 55.547469
Свяжитесь со мной на счет цены
10 дн.
T55S547469L37S540946T

На карте


Условия сделки

Источник


Старт продаж

Возможно заинтересует