Top.Mail.Ru

аллея Витте, д. 6, к. 1

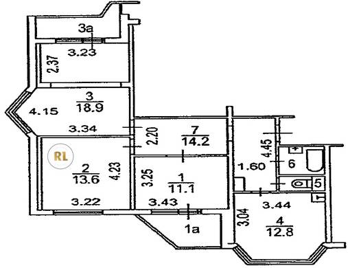
База каталог, Кол-во подъездов: 4, Имеется, П-44T, Москва, Южное Бутово, Площадь парковки: 356, Пассажирский лифт: 4, От метро: 440, Юго-Западный, да, Наименьшее кол-во этажей: 14, Наибольшее кол-во этажей: 14, Бульвар Адмирала Ушакова, Кол-во помещений: 222, Кол-во нежилых помещений: 0, Год ввода в эксплуатацию: 2002, 3-комн, Кол-во жилых помещений: 222, Не присвоен, дом 6, корпус 1, да, да, да, да, да, да, Имеется, Грузовых лифтов: 4, Год постройки: 2002, аллея Витте, 37.539158, 55.547850
Свяжитесь со мной на счет цены
10 дн.
T55S547850L37S539158T

На карте


Условия сделки

Источник


Старт продаж

Возможно заинтересует