Top.Mail.Ru

Скобелевская ул., д. 19, к. 2

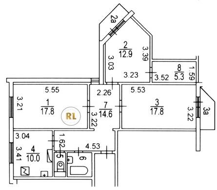
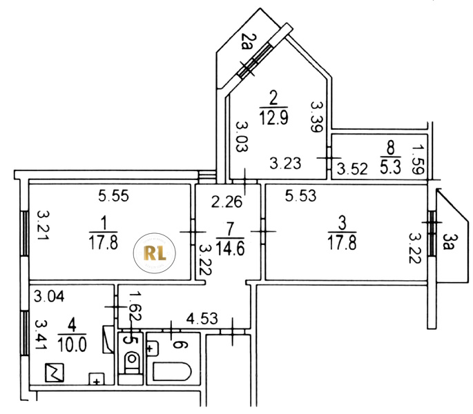
База каталог, Кол-во подъездов: 6, Имеется, П-3M, Москва, Южное Бутово, Площадь парковки: 1002, Пассажирский лифт: 6, От метро: 207, Юго-Западный, да, Наименьшее кол-во этажей: 12, Наибольшее кол-во этажей: 16, Улица Скобелевская, Кол-во помещений: 318, Кол-во нежилых помещений: 1, Год ввода в эксплуатацию: 2002, 3-комн, Кол-во жилых помещений: 317, Не присвоен, дом 19, корпус 2, да, да, да, да, да, да, Имеется, Грузовых лифтов: 6, Год постройки: 2002, Скобелевская улица, 37.558391, 55.548044
Свяжитесь со мной на счет цены
10 дн.
T55S548044L37S558391T

На карте


Условия сделки

Источник


Старт продаж

Возможно заинтересует