Top.Mail.Ru

Плавский проезд, д. 5

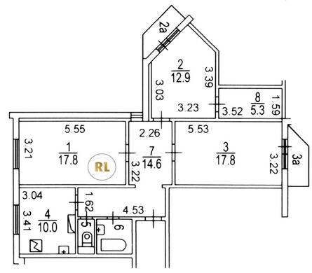
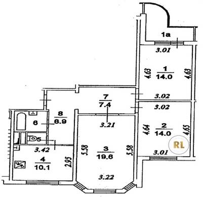
База каталог, Кол-во подъездов: 5, Отсутствует, П-3M, Москва, Южное Бутово, Площадь парковки: 359, Пассажирский лифт: 5, От метро: 670, Юго-Западный, да, Наименьшее кол-во этажей: 17, Наибольшее кол-во этажей: 17, Бульвар Адмирала Ушакова, Кол-во помещений: 339, Кол-во нежилых помещений: 0, Год ввода в эксплуатацию: 2002, 3-комн, Кол-во жилых помещений: 339, Не присвоен, дом 5, нет, да, да, да, да, да, Отсутствует, Грузовых лифтов: 5, Год постройки: 2002, Плавский проезд, 37.534469, 55.548375
Свяжитесь со мной на счет цены
10 дн.
T55S548375L37S534469T

На карте


Условия сделки

Источник


Старт продаж

Возможно заинтересует