Top.Mail.Ru

Изюмская ул., д. 34

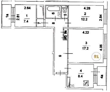
База каталог, Кол-во подъездов: 5, Отсутствует, П-30, Москва, Южное Бутово, Площадь парковки: 417, Пассажирский лифт: 5, От метро: 790, Юго-Западный, да, Наименьшее кол-во этажей: 10, Наибольшее кол-во этажей: 10, Улица Скобелевская, Кол-во помещений: 194, Кол-во нежилых помещений: 0, Год ввода в эксплуатацию: 2002, 3-комн, Кол-во жилых помещений: 194, Не присвоен, дом 34, нет, да, да, да, да, да, Имеется, Грузовых лифтов: 5, Год постройки: 2002, Изюмская улица, 37.566449, 55.548451
Свяжитесь со мной на счет цены
10 дн.
T55S548451L37S566449T

На карте


Условия сделки

Источник


Старт продаж

Возможно заинтересует