Top.Mail.Ru

Плавский проезд, д. 6

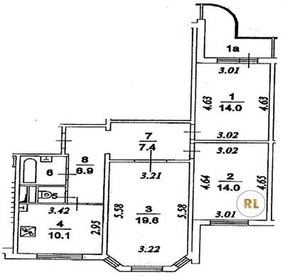
База каталог, Кол-во подъездов: 2, Отсутствует, П-3M, Москва, Южное Бутово, Площадь парковки: 0, Пассажирский лифт: 2, От метро: 910, Юго-Западный, нет, Наименьшее кол-во этажей: 14, Наибольшее кол-во этажей: 14, Бульвар Адмирала Ушакова, Кол-во помещений: 107, Кол-во нежилых помещений: 3, Год ввода в эксплуатацию: 2001, 3-комн, Кол-во жилых помещений: 104, Не присвоен, дом 6, нет, да, да, да, да, да, Отсутствует, Грузовых лифтов: 2, Год постройки: 2001, Плавский проезд, 37.533194, 55.548706
Свяжитесь со мной на счет цены
10 дн.
T55S548706L37S533194T

На карте


Условия сделки

Источник


Старт продаж

Возможно заинтересует