Top.Mail.Ru

Скобелевская ул., д. 10

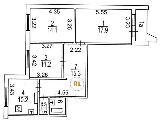
База каталог, Кол-во подъездов: 5, Имеется, П-44, Москва, Южное Бутово, Площадь парковки: 987, Пассажирский лифт: 5, От метро: 291, Юго-Западный, да, Наименьшее кол-во этажей: 10, Наибольшее кол-во этажей: 10, Улица Скобелевская, Кол-во помещений: 199, Кол-во нежилых помещений: 0, Год ввода в эксплуатацию: 1994, 3-комн, Кол-во жилых помещений: 199, Не присвоен, дом 10, да, да, да, да, да, да, Имеется, Грузовых лифтов: 5, Год постройки: 1994, Скобелевская улица, 37.552337, 55.549582
Свяжитесь со мной на счет цены
10 дн.
T55S549582L37S552337T

На карте


Условия сделки

Источник


Старт продаж

Возможно заинтересует