Top.Mail.Ru

Плавский проезд, д. 1

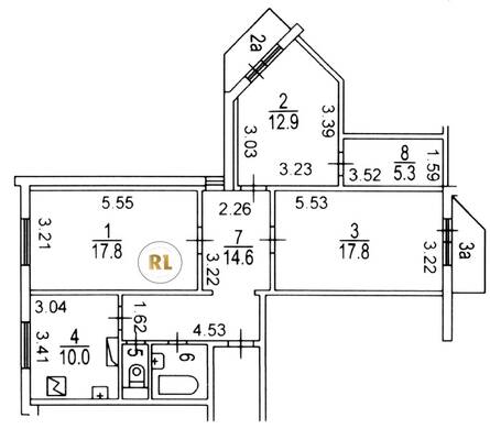
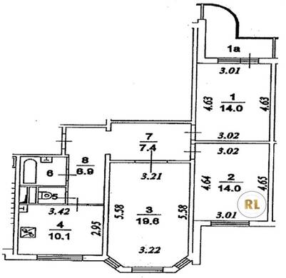
База каталог, Кол-во подъездов: 5, Отсутствует, П-3M, Москва, Южное Бутово, Площадь парковки: 628, Пассажирский лифт: 5, От метро: 730, Юго-Западный, да, Наименьшее кол-во этажей: 17, Наибольшее кол-во этажей: 17, Бульвар Адмирала Ушакова, Кол-во помещений: 338, Кол-во нежилых помещений: 0, Год ввода в эксплуатацию: 2002, 3-комн, Кол-во жилых помещений: 338, Не присвоен, дом 1, нет, да, да, да, да, да, Имеется, Грузовых лифтов: 5, Год постройки: 2002, Плавский проезд, 37.535089, 55.549592
Свяжитесь со мной на счет цены
10 дн.
T55S549592L37S535089T

На карте


Условия сделки

Источник


Старт продаж

Возможно заинтересует