Top.Mail.Ru

Изюмская ул., д. 30

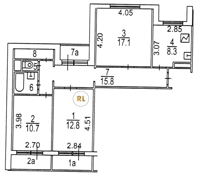
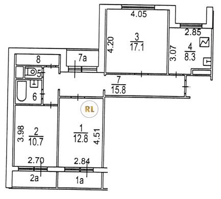
База каталог, Кол-во подъездов: 5, Имеется, П-55, Москва, Южное Бутово, Площадь парковки: 602, Пассажирский лифт: 5, От метро: 760, Юго-Западный, да, Наименьшее кол-во этажей: 10, Наибольшее кол-во этажей: 10, Улица Скобелевская, Кол-во помещений: 194, Кол-во нежилых помещений: 0, Год ввода в эксплуатацию: 2002, 3-комн, Кол-во жилых помещений: 194, Не присвоен, дом 30, нет, да, да, да, да, да, Имеется, Грузовых лифтов: 5, Год постройки: 2002, Изюмская улица, 37.566584, 55.549714
Свяжитесь со мной на счет цены
10 дн.
T55S549714L37S566584T

На карте


Условия сделки

Источник


Старт продаж

Возможно заинтересует