Top.Mail.Ru

аллея Витте, д. 2

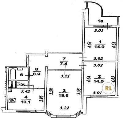
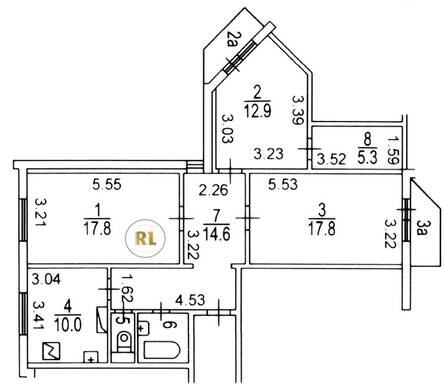
База каталог, Кол-во подъездов: 4, П-3M, Москва, Южное Бутово, Площадь парковки: 476, Пассажирский лифт: 4, От метро: 660, Юго-Западный, да, Наименьшее кол-во этажей: 17, Наибольшее кол-во этажей: 17, Бульвар Адмирала Ушакова, Кол-во помещений: 256, Кол-во нежилых помещений: 0, Год ввода в эксплуатацию: 2002, 3-комн, Кол-во жилых помещений: 256, Не присвоен, дом 2, нет, да, да, да, да, да, Имеется, Грузовых лифтов: 4, Год постройки: 2002, аллея Витте, 37.539042, 55.550096
Свяжитесь со мной на счет цены
10 дн.
T55S550096L37S539042T

На карте


Условия сделки

Источник


Старт продаж

Возможно заинтересует