Top.Mail.Ru

Скобелевская ул., д. 8

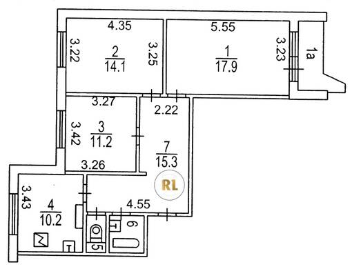
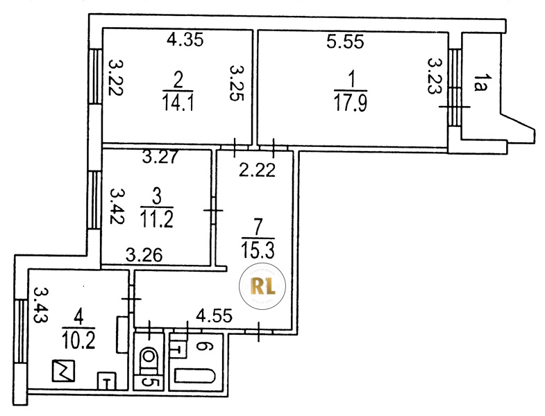
База каталог, Кол-во помещений: 310, Имеется, П-44, Москва, Южное Бутово, Площадь парковки: 692, Пассажирский лифт: 5, От метро: 310, Юго-Западный, да, Наименьшее кол-во этажей: 14, Наибольшее кол-во этажей: 17, Улица Скобелевская, Кол-во подъездов: 5, Год ввода в эксплуатацию: 1994, Кол-во нежилых помещений: 3, 3-комн, Кол-во жилых помещений: 307, дом 8, да, да, да, да, да, да, Имеется, Грузовых лифтов: 5, Год постройки: 1994, Скобелевская улица, 37.554079, 55.550397
Свяжитесь со мной на счет цены
10 дн.
T55S550397L37S554079T

На карте


Условия сделки

Источник


Старт продаж

Возможно заинтересует