Top.Mail.Ru

Изюмская ул., д. 28

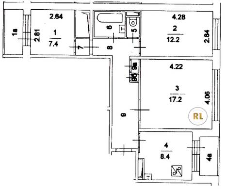
База каталог, Кол-во подъездов: 5, Имеется, П-30, Москва, Южное Бутово, Площадь парковки: 507, Пассажирский лифт: 5, От метро: 670, Юго-Западный, да, Наименьшее кол-во этажей: 10, Наибольшее кол-во этажей: 10, Улица Скобелевская, Кол-во помещений: 195, Кол-во нежилых помещений: 0, Год ввода в эксплуатацию: 2002, 3-комн, Кол-во жилых помещений: 195, Не присвоен, дом 28, нет, да, да, да, да, да, Отсутствует, Грузовых лифтов: 5, Год постройки: 2002, Изюмская улица, 37.564850, 55.550590
Свяжитесь со мной на счет цены
10 дн.
T55S550590L37S564850T

На карте


Условия сделки

Источник


Старт продаж

Возможно заинтересует