Top.Mail.Ru

улица Грина, д. 1, к. 1

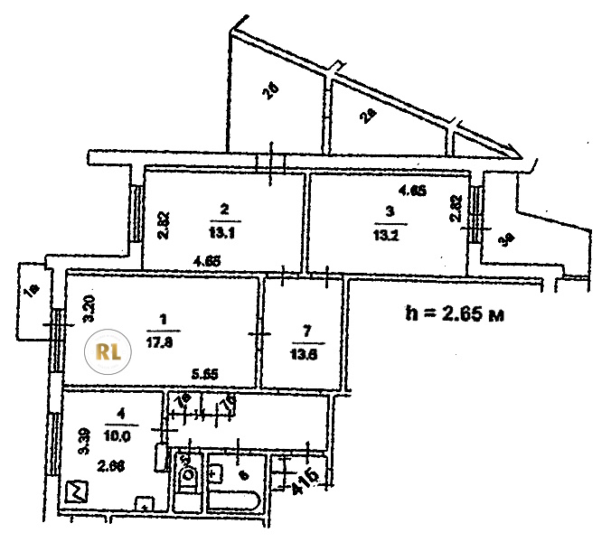
База каталог, Кол-во помещений: 250, П-3/16, Москва, Северное Бутово, Площадь парковки: 0, Пассажирский лифт: 4, От метро: 810, Юго-Западный, нет, Наименьшее кол-во этажей: 17, Наибольшее кол-во этажей: 17, Бульвар Дмитрия Донского, Кол-во подъездов: 4, Год ввода в эксплуатацию: 1994, Кол-во нежилых помещений: 2, 3-комн, Кол-во жилых помещений: 248, дом 1, корпус 1, нет, да, да, да, да, да, Грузовых лифтов: 4, Год постройки: 1994, улица Грина, 37.582152, 55.562938
Свяжитесь со мной на счет цены
10 дн.
T55S562938L37S582152T

На карте


Условия сделки

Источник


Старт продаж

Возможно заинтересует