Top.Mail.Ru

улица Грина, д. 20

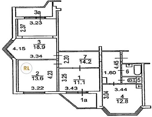
База каталог, Кол-во подъездов: 2, Отсутствует, П-44T, Москва, Северное Бутово, Площадь парковки: 0, Пассажирский лифт: 2, От метро: 400, Юго-Западный, нет, Наименьшее кол-во этажей: 17, Наибольшее кол-во этажей: 17, Бульвар Дмитрия Донского, Кол-во помещений: 135, Кол-во нежилых помещений: 1, Год ввода в эксплуатацию: 2002, 3-комн, Кол-во жилых помещений: 134, Не присвоен, дом 20, да, да, да, да, да, да, Отсутствует, Грузовых лифтов: 2, Год постройки: 2002, улица Грина, 37.578675, 55.565442
Свяжитесь со мной на счет цены
10 дн.
T55S565442L37S578675T

На карте


Условия сделки

Источник


Старт продаж

Возможно заинтересует