Top.Mail.Ru

Коктебельская ул., д. 4, к. 4

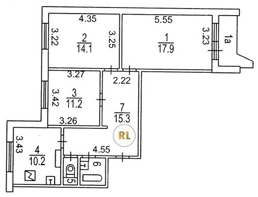
База каталог, Кол-во помещений: 135, Имеется, П-44, Москва, Северное Бутово, Площадь парковки: 0, Пассажирский лифт: 2, От метро: 730, Юго-Западный, нет, Наименьшее кол-во этажей: 17, Наибольшее кол-во этажей: 17, Бульвар Дмитрия Донского, Кол-во подъездов: 2, Год ввода в эксплуатацию: 1990, Кол-во нежилых помещений: 0, 3-комн, Кол-во жилых помещений: 135, дом 4, корпус 4, нет, да, да, да, да, да, Имеется, Грузовых лифтов: 2, Год постройки: 1990, Коктебельская улица, 37.584972, 55.565458
Свяжитесь со мной на счет цены
10 дн.
T55S565458L37S584972T

На карте


Условия сделки

Источник


Старт продаж

Возможно заинтересует