Top.Mail.Ru

Коктебельская ул., д. 4, к. 1

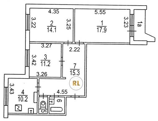
База каталог, Кол-во помещений: 337, Имеется, П-44, Москва, Северное Бутово, Площадь парковки: 0, Пассажирский лифт: 5, От метро: 860, Юго-Западный, нет, Наименьшее кол-во этажей: 1, Наибольшее кол-во этажей: 17, Бульвар Дмитрия Донского, Кол-во подъездов: 5, Год ввода в эксплуатацию: 1990, Кол-во нежилых помещений: 9, 3-комн, Кол-во жилых помещений: 328, дом 4, корпус 1, нет, да, да, да, да, да, Имеется, Грузовых лифтов: 5, Год постройки: 1990, Коктебельская улица, 37.586050, 55.565738
Свяжитесь со мной на счет цены
10 дн.
T55S565738L37S586050T

На карте


Условия сделки

Источник


Старт продаж

Возможно заинтересует