Top.Mail.Ru

улица Грина, д. 18, к. 2

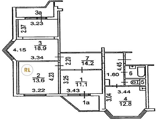
База каталог, Кол-во подъездов: 4, П-44T, Москва, Северное Бутово, Пассажирский лифт: 4, От метро: 400, Юго-Западный, да, Наименьшее кол-во этажей: 17, Наибольшее кол-во этажей: 17, Бульвар Дмитрия Донского, Кол-во помещений: 271, Кол-во нежилых помещений: 1, Год ввода в эксплуатацию: 2002, 3-комн, Кол-во жилых помещений: 270, дом 18, корпус 2, да, да, да, да, да, да, Грузовых лифтов: 4, Год постройки: 2002, улица Грина, 37.580355, 55.565870
Свяжитесь со мной на счет цены
10 дн.
T55S565870L37S580355T

На карте


Условия сделки

Источник


Старт продаж

Возможно заинтересует