Top.Mail.Ru

Коктебельская ул., д. 4, к. 3

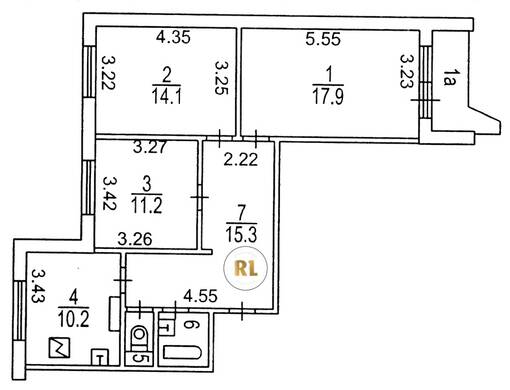
База каталог, Кол-во подъездов: 5, П-44, Москва, Северное Бутово, Пассажирский лифт: 5, От метро: 710, Юго-Западный, да, Наименьшее кол-во этажей: 17, Наибольшее кол-во этажей: 17, Бульвар Дмитрия Донского, Кол-во помещений: 340, Кол-во нежилых помещений: 1, Год ввода в эксплуатацию: 1990, 3-комн, Кол-во жилых помещений: 339, дом 4, корпус 3, нет, да, да, да, да, да, Грузовых лифтов: 5, Год постройки: 1990, Коктебельская улица, 37.583787, 55.566242
Свяжитесь со мной на счет цены
10 дн.
T55S566242L37S583787T

На карте


Условия сделки

Источник


Старт продаж

Возможно заинтересует