Top.Mail.Ru

улица Грина, д. 5

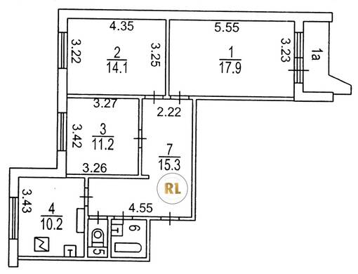
База каталог, Кол-во помещений: 202, П-44, Москва, Северное Бутово, Площадь парковки: 0, Пассажирский лифт: 3, От метро: 380, Юго-Западный, нет, Наименьшее кол-во этажей: 17, Наибольшее кол-во этажей: 17, Бульвар Дмитрия Донского, Кол-во подъездов: 3, Год ввода в эксплуатацию: 1992, Кол-во нежилых помещений: 2, 3-комн, Кол-во жилых помещений: 200, дом 5, да, да, да, да, да, да, Грузовых лифтов: 3, Год постройки: 1992, улица Грина, 37.571956, 55.566318
Свяжитесь со мной на счет цены
10 дн.
T55S566318L37S571956T

На карте


Условия сделки

Источник


Старт продаж

Возможно заинтересует