Top.Mail.Ru

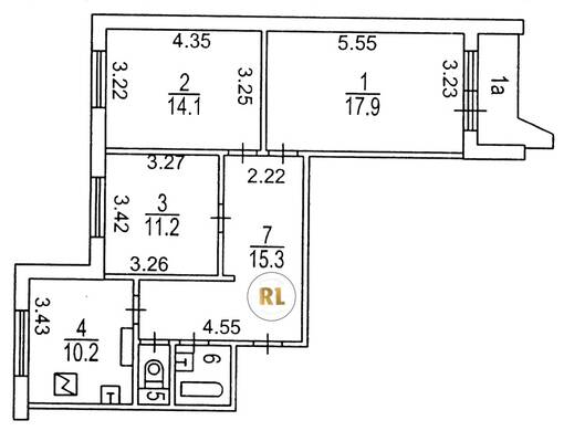
Коктебельская ул., д. 4, к. 2

База каталог, Кол-во подъездов: 4, П-44, Москва, Северное Бутово, Пассажирский лифт: 4, От метро: 660, Юго-Западный, да, Наименьшее кол-во этажей: 17, Наибольшее кол-во этажей: 17, Бульвар Дмитрия Донского, Кол-во помещений: 273, Кол-во нежилых помещений: 1, Год ввода в эксплуатацию: 1990, 3-комн, Кол-во жилых помещений: 272, дом 4, корпус 2, нет, да, да, да, да, да, Грузовых лифтов: 4, Год постройки: 1990, Коктебельская улица, 37.585242, 55.566461
Свяжитесь со мной на счет цены
10 дн.
T55S566461L37S585242T

На карте


Условия сделки

Источник


Старт продаж

Возможно заинтересует