Top.Mail.Ru

Коктебельская ул., д. 2, к. 2

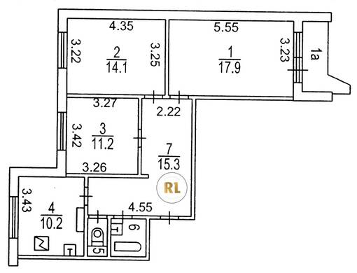
База каталог, Кол-во подъездов: 2, П-44, Москва, Северное Бутово, Пассажирский лифт: 2, От метро: 750, Юго-Западный, да, Наименьшее кол-во этажей: 17, Наибольшее кол-во этажей: 17, Бульвар Дмитрия Донского, Кол-во помещений: 135, Кол-во нежилых помещений: 0, Год ввода в эксплуатацию: 1990, 3-комн, Кол-во жилых помещений: 135, дом 2, корпус 2, нет, да, да, да, да, да, Грузовых лифтов: 2, Год постройки: 1990, Коктебельская улица, 37.587281, 55.567153
Свяжитесь со мной на счет цены
10 дн.
T55S567153L37S587281T

На карте


Условия сделки

Источник


Старт продаж

Возможно заинтересует