Top.Mail.Ru

Старокачаловская ул., д. 3, к. 4

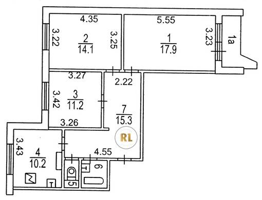
База каталог, Кол-во подъездов: 2, Отсутствует, П-44, Москва, Северное Бутово, Площадь парковки: 0, Пассажирский лифт: 2, От метро: 470, Юго-Западный, нет, Наименьшее кол-во этажей: 17, Наибольшее кол-во этажей: 17, Бульвар Дмитрия Донского, Кол-во помещений: 135, Кол-во нежилых помещений: 1, Год ввода в эксплуатацию: 1990, 3-комн, Кол-во жилых помещений: 134, Не присвоен, дом 3, корпус 4, да, да, да, да, да, да, Отсутствует, Грузовых лифтов: 2, Год постройки: 1990, Старокачаловская улица, 37.583131, 55.568145
Свяжитесь со мной на счет цены
10 дн.
T55S568145L37S583131T

На карте


Условия сделки

Источник


Старт продаж

Возможно заинтересует