Top.Mail.Ru

Старокачаловская ул., д. 3, к. 1

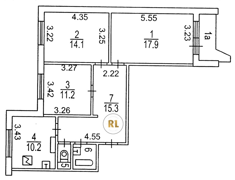
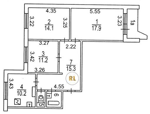
База каталог, Кол-во подъездов: 5, П-44, Москва, Северное Бутово, Пассажирский лифт: 5, От метро: 580, Юго-Западный, да, Наименьшее кол-во этажей: 17, Наибольшее кол-во этажей: 17, Бульвар Дмитрия Донского, Кол-во помещений: 331, Кол-во нежилых помещений: 3, Год ввода в эксплуатацию: 1990, 3-комн, Кол-во жилых помещений: 328, дом 3, корпус 1, да, да, да, да, да, да, Грузовых лифтов: 5, Год постройки: 1990, Старокачаловская улица, 37.584218, 55.568476
Свяжитесь со мной на счет цены
10 дн.
T55S568476L37S584218T

На карте


Условия сделки

Источник


Старт продаж

Возможно заинтересует