Top.Mail.Ru

бульвар Дмитрия Донского, д. 9, к. 1

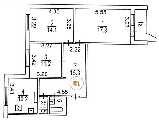
База каталог, Кол-во помещений: 328, П-44, Москва, Северное Бутово, Площадь парковки: 0, Пассажирский лифт: 5, От метро: 173, Юго-Западный, нет, Наименьшее кол-во этажей: 1, Наибольшее кол-во этажей: 17, Бульвар Дмитрия Донского, Кол-во подъездов: 5, Год ввода в эксплуатацию: 1992, Кол-во нежилых помещений: 1, 3-комн, Кол-во жилых помещений: 327, дом 9, корпус 1, да, да, да, да, да, да, Грузовых лифтов: 0, Год постройки: 1991, бульвар Дмитрия Донского, 37.577669, 55.568512
Свяжитесь со мной на счет цены
10 дн.
T55S568512L37S577669T

На карте


Условия сделки

Источник


Старт продаж

Возможно заинтересует