Top.Mail.Ru

бульвар Дмитрия Донского, д. 9, к. 2

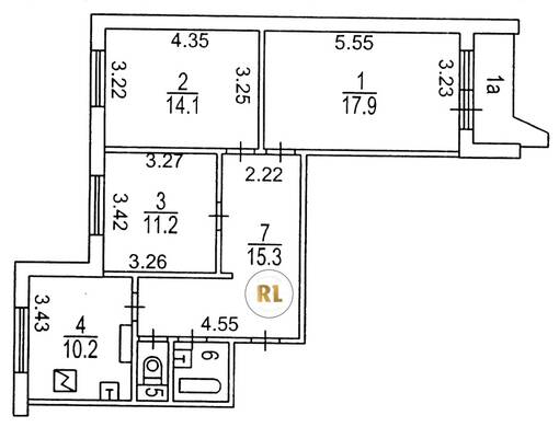
База каталог, Кол-во подъездов: 4, П-44, Москва, Северное Бутово, Пассажирский лифт: 4, От метро: 201, Юго-Западный, да, Наименьшее кол-во этажей: 17, Наибольшее кол-во этажей: 17, Бульвар Дмитрия Донского, Кол-во помещений: 259, Кол-во нежилых помещений: 3, Год ввода в эксплуатацию: 1990, 3-комн, Кол-во жилых помещений: 256, дом 9, корпус 2, да, да, да, да, да, да, Грузовых лифтов: 4, Год постройки: 1990, бульвар Дмитрия Донского, 37.579124, 55.568695
Свяжитесь со мной на счет цены
10 дн.
T55S568695L37S579124T

На карте


Условия сделки

Источник


Старт продаж

Возможно заинтересует